1、玻璃光学热工性能计算
| 编号 | 名称 | A | g | U | SC | τ | 倾角 |
| 1 | 6-12-6-12-6 | 1.515 | 0.353 | 1.366 | 0.405 | 0.319 | 60 |
说明:A——玻璃或透明面板面积(m2);Sc——玻璃或透明面板的遮阳系数;g——玻璃或透明面板的太阳光总透射比;τ——玻璃或透明面板的可见光透射比;U——玻璃或透明面板传热系数(W/(m2•K));倾角——单位:° ;
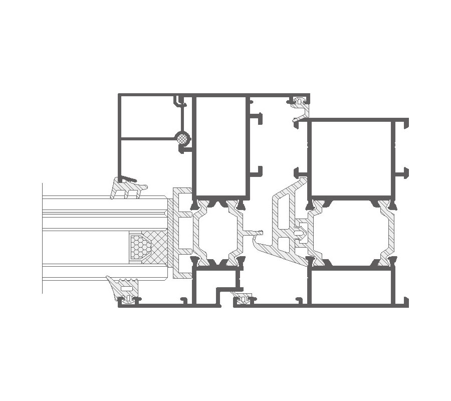
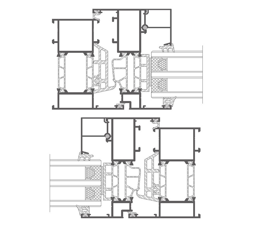
2、 框传热计算结果
| 编号 | 名称 | A | g | U | GD | l1 | l2 | ψ1 | ψ2 |
| 1 | 80-下 | 0.147 | 0.036 | 2.003 | 0 | 1.231 | 0 | 0.126 | 0.126 |
| 2 | 80-左 | 0.147 | 0.037 | 2.073 | 5 | 1.231 | 0 | 0.124 | 0.124 |
| 3 | 80-上 | 0.147 | 0.036 | 2.003 | 1 | 1.231 | 0 | 0.126 | 0.126 |
| 4 | 80-右 | 0.147 | 0.037 | 2.073 | 4 | 1.231 | 0 | 0.124 | 0.124 |
说明: A——框的面积(㎡);l1、l2——框的节点线传热长度1(m); g——框的太阳光总透射比;ψ1、ψ2——框的线传热系数(W/(m•K)) U——框的传热系数(W/(m2•K));GD——重力方向:0为上,1为下,2为左,3为右,4为屏幕向里,5为屏幕向外;
3、 整窗传热计算结果
 | = (2.068 + 1.198 + 0.614) / (1.515 + 0.588) = 1.846 W/(m2•K) |

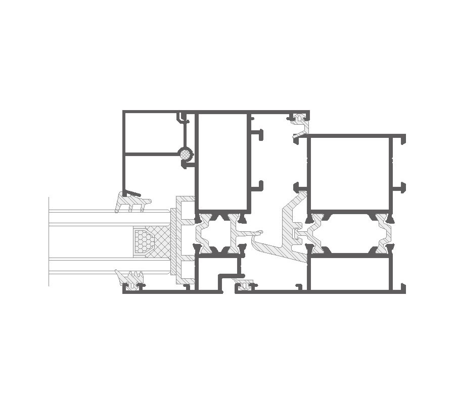
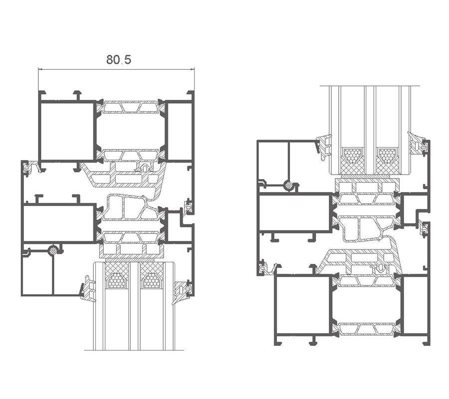
附件A 温度线图
附件B 温度场图
产品性能
| 60 | 65 | 70 | 75 | 80 |
| 保温性能 | 2.3 W/(m2·K) | 6级 | 2.3 W/(m2·K) | 6级 | 2.3 W/(m2·K) | 6级 | 2.2 W/(m2·K) | 6级 | 1.7 W/(m2·K) | 7级 |
| 隔音性能 | 32 dB | 3级 | 35 dB | 4级 | 35 dB | 4级 | 35 dB | 4级 | 37 dB | 4级 |
| 水密性能 | 700 Pa | 6级 | 700 Pa | 6级 | 700 Pa | 6级 | 700 Pa | 6级 | 700 Pa | 6级 |
| 气密性能 |
| 8级 |
| 8级 |
| 8级 |
| 8级 |
| 8级 |
| 抗风压性能 | 4.3 kpa | 7级 | 4.7 kpa | 8级 | 4.7 kpa | 8级 | 4.7 kpa | 8级 | 4.7 kpa | 8级 |
|
| 60 | 65 | 70 | 75 | 80 |
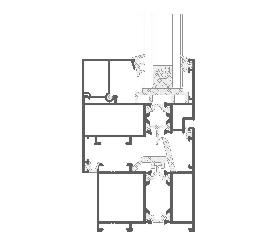
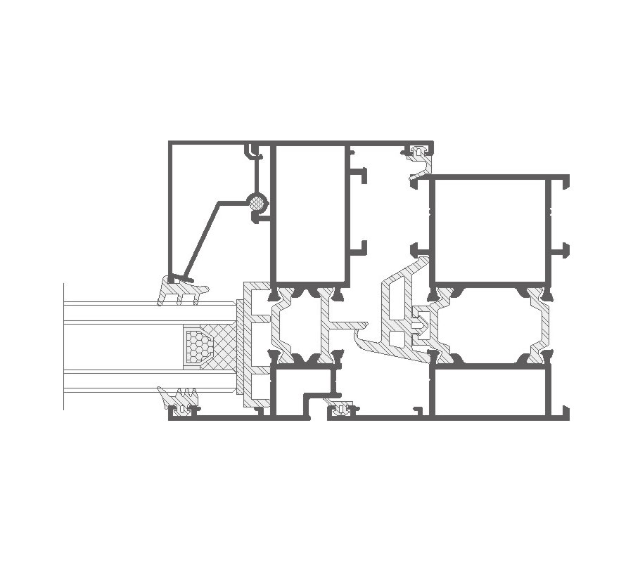
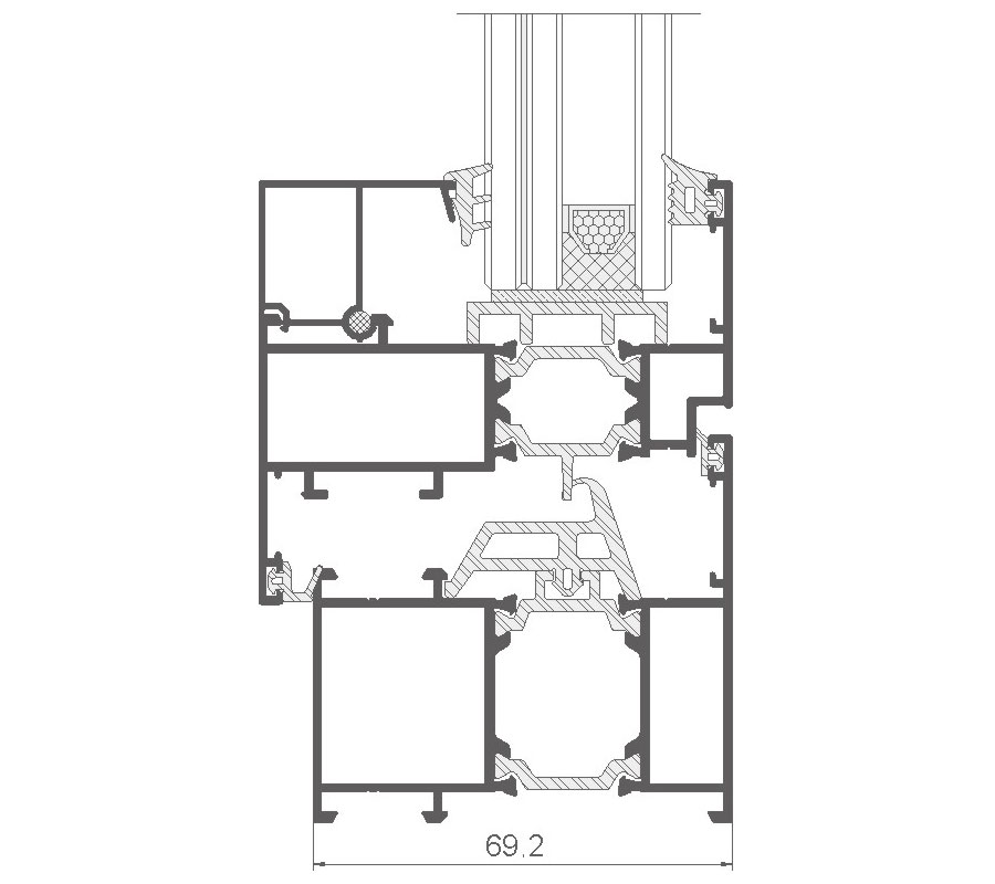
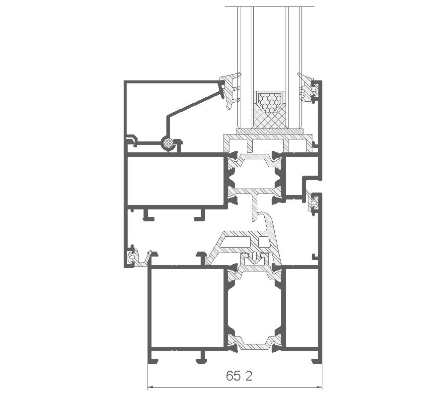
| 可视宽 /高 | 框 | 64mm | 64mm | 64mm | 64mm | 64mm |
| 扇 | 42mm | 42mm | 42mm | 42mm | 42mm |
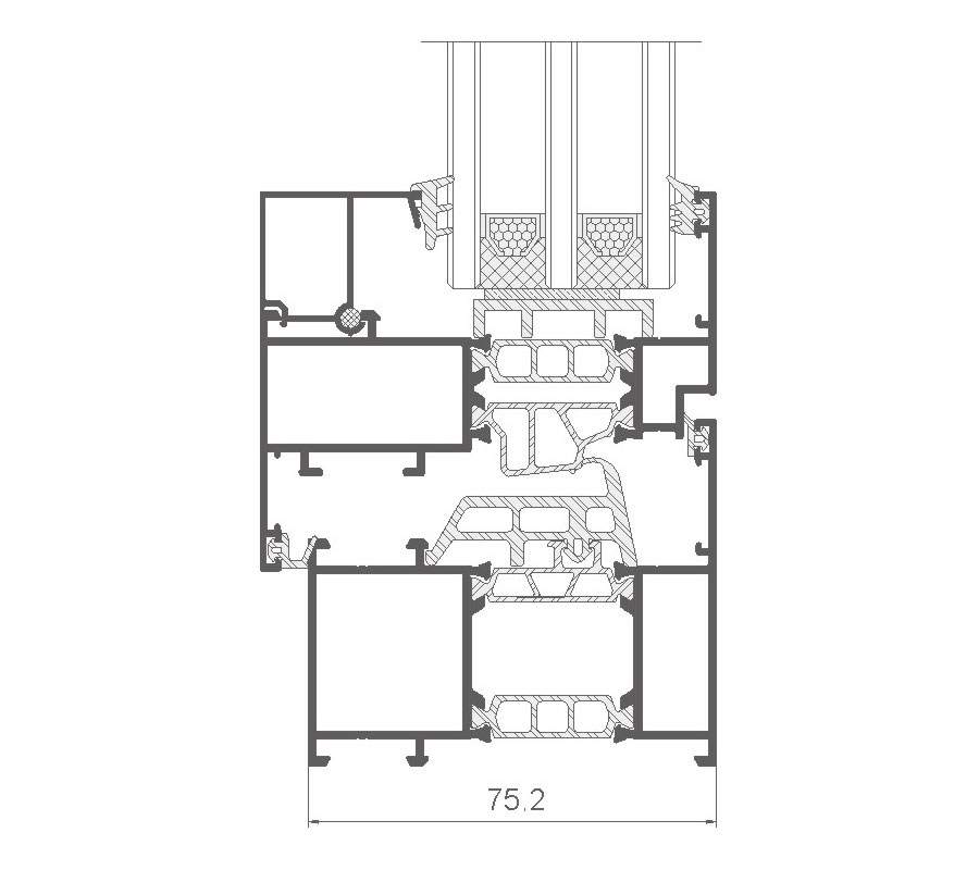
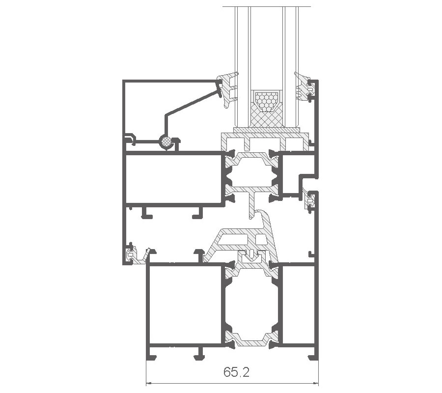
| 型材宽度 | 框 | 60mm | 65mm | 69mm | 75mm | 80mm |
| 扇 | 69mm | 74mm | 78mm | 84mm | 89mm |
| 适合玻璃厚度 | 24mm~28mm | 24mm~28mm | 30mm~35mm | 38mm~45mm | 38mm~45mm |