1、玻璃光学热工性能计算
| 编号 | 名称 | A | g | U | SC | τ | 倾角 |
| 1 | 6-0.76-6-12-6Eg | 1.327 | 0.229 | 1.546 | 0.263 | 0.301 | 90 |
说明:A——玻璃或透明面板面积(m2);Sc——玻璃或透明面板的遮阳系数;g——玻璃或透明面板的太阳光总透射比;τ——玻璃或透明面板的可见光透射比;U——玻璃或透明面板传热系数(W/(m2•K));倾角——单位:° ;
2、 框传热计算结果
| 编号 | 名称 | A | g | U | GD | l1 | l2 | ψ1 | ψ2 |
| 1 | 75-内开门-下 | 0.194 | 0.047 | 2.498 | 1 | 1.152 | 0 | 0.054 | 0.054 |
| 2 | 75-内开门-左 | 0.194 | 0.048 | 2.576 | 5 | 1.152 | 0 | 0.056 | 0.056 |
| 3 | 75-内开门-上 | 0.194 | 0.047 | 2.498 | 1 | 1.152 | 0 | 0.054 | 0.054 |
| 4 | 75-内开门-右 | 0.194 | 0.048 | 2.576 | 5 | 1.152 | 0 | 0.056 | 0.056 |
说明: A——框的面积(㎡);l1、l2——框的节点线传热长度1(m); g——框的太阳光总透射比;ψ1、ψ2——框的线传热系数(W/(m•K)) U——框的传热系数(W/(m2•K));GD——重力方向:0为上,1为下,2为左,3为右,4为屏幕向里,5为屏幕向外;
3、 整窗传热计算结果
 | = (2.051 + 1.968 + 0.253) / (1.327 + 0.776) = 2.032 W/(m2•K) |

附件A 温度线图

附件B 温度场图
产品性能
| 60 | 65 | 70 | 75 |
| 保温性能 | 2.7 W/(m2·K) | 5级 | 2.7 W/(m2·K) | 5级 | 2.5 W/(m2·K) | 5级 | 2.5 W/(m2·K) | 5级 |
| 隔音性能 | 30 dB | 3级 | 32 dB | 3级 | 33 dB | 4级 | 35 dB | 4级 |
| 水密性能 | 350 Pa | 4级 | 350 Pa | 4级 | 350 Pa | 6级 | 350 Pa | 4级 |
| 气密性能 |
| 7级 |
| 7级 |
| 7级 |
| 7级 |
| 抗风压性能 | 3.0 kpa | 5级 | 4.2 kpa | 5级 | 3.6 kpa | 8级 | 4.3 kpa | 7级 |
技术参数
|
| 60 | 65 | 70 | 75 |
| 可视宽 /高 | 框 | 68mm | 68mm | 68mm | 68mm |
| 扇 | 78mm | 78mm | 78mm | 78mm |
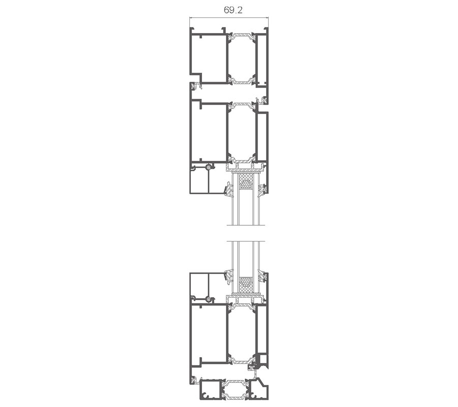
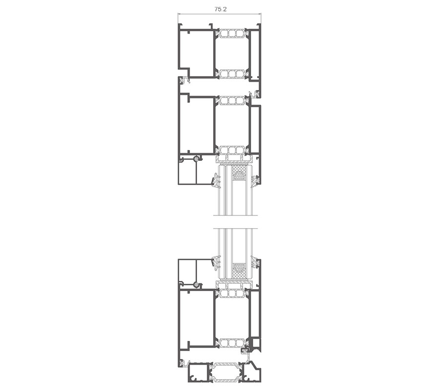
| 型材宽度 | 框 | 60mm | 65mm | 69mm | 75mm |
| 扇 | 60mm | 65mm | 69mm | 78mm |
| 适合玻璃厚度 | 24mm~28mm | 24mm~28mm | 24mm~28mm | 24mm~33mm |